0 0

Мы открыты
{region_schedule}

Звоните!
{region_phone}

Наш адрес
Смотреть

Бесплатная доставка
При покупке от 20 тысяч рублей

Каминная топка Ferguss FG-17

Теги: каминная топка

Каминная топка Ferguss C-17 с дымосборником.

Каминная топка C 17 - это функциональная и мощная модель с прямым стеклом и дымосборником, изготовленная из высококачественных и долговечных материалов, таких, как чугун. Фирма-производитель модели расположена в Испании.

Ferguss C 17 является классической чугунной топкой, работающей на дровах. Производитель изготовляет данную топку также со встроенной шиберной заслонкой из чугуна для регулировки тяги и, как следствие, более эффективной работы. Также модель доступна с возможностью подключения наружного воздуха (C 17 air ext).

Односторонняя каминная топка Ferguss C 17 отлично подойдет для обогрева квартир, крупных загородных домов или коттеджей, где отсутствует магистральный газопровод. Модель имеет вторичный дожиг газов и режим 'длительное горение', благодаря которому уже после окончания работы топки угли продолжат тлеть и отдавать тепло на протяжении последующих 4-10 часов, тем самым помогая значительно сэкономить на дровах. Топка Ферлюкс C 17 оснащена уникальной системой самоочистки стекла, благодаря которой стекла в дверце будут долгое время оставаться чистыми от пыли и копоти. Также модель имеет съемный чугунный зольник.

Как горит камин Ferguss C17. Обзорное видео.

Ищем лучшую цену в {region_field_10}

Мы стараемся, чтобы Вы остались довольны, именно поэтому представляем Вам возможность приобрести данный товар на более выгодных условиях. Для этого всего лишь нужно отправить запрос во все магазины города, а они в свою очередь предоставят Вам данные по ценам и акциям.

Заполните данные для запроса:
Товар: Каминная топка Ferguss FG-17
Топливо Дрова
Форма стекла Прямое
Материал топки Чугун
Водяной контур Нет
Футеровка Чугун
Подъемная дверца Нет
Шибер Нет
Колосник Есть
Зольник Есть
Мощность (кВт) 10
КПД (%) 75
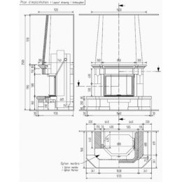
Высота (мм) 470
Ширина (мм) 650
Глубина (мм) 394
Вес 90 кг
Бренд Ferguss (Сербия)
Выход дымохода сверху
Рассказать друзьям!
Купить Каминная топка Ferguss FG-17
Артикул товара: 3254
В наличии
86 496 руб. ×
Наши преимущества
  • Заказ
    Наш менеджер готов ответить на все ваши вопросы.
  • Доставка
    Мы доставим ваш заказ по городу, области или через транспортные компании по всей России.
  • Оплата
    Оплатите заказ банковской картой, наличными в нашем магазине или при доставке наличными.
  • Розничный магазин
    Будем рады видеть вас в нашем магазине по адресу {region_field_3}
{region_field_23}