0 0

Мы открыты
{region_schedule}

Звоните!
{region_phone}

Наш адрес
Смотреть

Бесплатная доставка
При покупке от 20 тысяч рублей

Каминная топка АСТОВ П2С 10057 (правая)

Теги: каминная топка

Каминная топка АСТОВ П2С 10057 (правая)

ТОПКА ПОДОВАЯ УГЛОВОЕ СТЕКЛО (Г-образная) И ПОДЪЕМНЫМ МЕХАНИЗМОМ ДВЕРЦЫ

Материал изготовления и конструктивные особенности

Задняя стенка двойная.

Футеровка формирует структуру, несущую на себе всю термическую нагрузку.

Шамот, керамические вставки – стенки разогревается продолжительно, температура развивается более, чем с металлическим содержимым. Превосходно для любителей долго пожечь.

Панели 3Д – сбалансированный вариант, тепло распределяется равномерно, а внушительная масса поддерживает высокотемпературное горение.

Широкие стальные пластины для стиля хай-тек.

Вид на огонь

Топка с максимальной панорамой пламени –прекрасный вид на огонь из любой точки помещения. Открыв дверцу наверх, Вы можете ощутить себя, как у костра в лесу, на привале.

Шелкография завершает обрамление очага, гармонируя с внутренним убранством топочной части.

Усиленный воздушный поток на дожиг, предохраняет стеклокерамику от нагара. Застеклённая поверхность остаётся неизменно чистой, пока вы протапливаете.

Плотное прижимание дверцы, в нижней точке закрывания, и качественные регуляторы, позволяют без напряжения управлять огненным процессом, от практически невидимого, до бушующего.

Ручка для открывания, бархатная на ощупь, не обжигает руки.

Дверь поднимается легко и бесшумно, благодаря особенным, долговечным приспособлениям.

Регулируемые ножки, задают исключительно чёткую установку агрегата, что очень существенно для устойчивого, мягкого движения подъёмного механизма.

Мощность топки и необходимые габариты подходящего помещения.

Номинальная теплопроизводительность устройства 8 кВт. Оптимальный объём зала 200 м3. Вы будете чувствовать себя комфортно, даже если очаг горит круглосуточно.

Тип подсоединения к дымоходу и условия для формирования хорошей тяги

Выходной патрубок сделан для подключения трубы «по конденсату».

Влага будет испарятся, не оказывая разрушающего воздействия на стыковочные узлы.

Для уменьшения сопротивления в дымовом канале и улучшения работы топливника, обязательно применяйте розжиг сверху, когда растапливаете холодный камин.

Как избежать проблем с дымом, при обустройстве газохода, подробно описано в руководстве.

Гарантии производителя

Гарантийный срок, для подачи рекламации – 5 лет.

АСТОВ гарантирует исправную службу изделия, на протяжении всего периода использования, если 80% времени, будет поддерживаться умеренный (средний) режим сгорания, с соблюдением всех правил монтажа и эксплуатации, изложенных в инструкции.

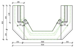
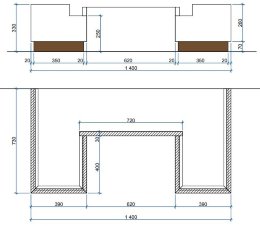
  • Габаритные размеры Ш-1111мм*В-1376мм*Г-571мм
  • Размер проёма для дверки Ш-1000мм *В-570мм Г-460 мм
  • Диаметр дымового патрубка Ф=250 мм
  • Футеровка – Стальные широкие пластины, Панели 3Д, Шамот или Керамика
  • Вес 330-380 кг (в зависимости от футеровки)
  • Номинальная мощность 10 квт
  • КПД с закрытой дверкой, в номинальном режиме 75%
  • Система «чистое стекло» регулируемая.
  • Регулируемый вторичный дожиг.
  • Рекомендуется для помещений не менее 125 м3 (норма 200м3)
  • В комплекте ножки, регулируемые по высоте
  • Гарантия 5 лет при условии соблюдения прилагаемой инструкции и СНиП

Ищем лучшую цену в {region_field_10}

Мы стараемся, чтобы Вы остались довольны, именно поэтому представляем Вам возможность приобрести данный товар на более выгодных условиях. Для этого всего лишь нужно отправить запрос во все магазины города, а они в свою очередь предоставят Вам данные по ценам и акциям.

Заполните данные для запроса:
Товар: Каминная топка АСТОВ П2С 10057 (правая)
Топливо Дрова
Форма стекла Угловое
Материал топки Сталь
Водяной контур Нет
Футеровка Шамот, Сталь, Керамика
Подъемная дверца Есть
Ширина фасада топки (мм) 1000
Высота фасада топки (мм) 570
Шибер Нет
Колосник Нет
Зольник Нет
Дожиг воздуха Вторичный
Мощность (кВт) 9
КПД (%) 75
Диаметр (мм) 250
Высота (мм) 1376
Ширина (мм) 1111
Глубина (мм) 571
Вес 330 кг
Бренд Астов (РФ)
Загрузка...
Рассказать друзьям!
Купить Каминная топка АСТОВ П2С 10057 (правая)
В наличии
534 000 руб. 470 000 руб. ×
Наши преимущества
  • Заказ
    Наш менеджер готов ответить на все ваши вопросы.
  • Доставка
    Мы доставим ваш заказ по городу, области или через транспортные компании по всей России.
  • Оплата
    Оплатите заказ банковской картой, наличными в нашем магазине или при доставке наличными.
  • Розничный магазин
    Будем рады видеть вас в нашем магазине по адресу {region_field_3}
{region_field_23}