0 0

Мы открыты
{region_schedule}

Звоните!
{region_phone}

Наш адрес
Смотреть

Бесплатная доставка
При покупке от 20 тысяч рублей

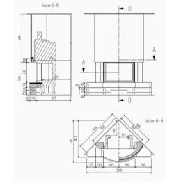
Каминная топка Edilkamin H2Oceano 15

Теги: каминная топка

Каминная топка с водяным контуром H2OCEANO 15 (для открытой системы).


Дровяная каминная топка с водяным контуром, который полностью охватывает топку, увеличивая поверхность теплообмена. Модель оснащена расширительным баком.

  • Выход дымовых газов верхний.
  • S.C.P. — Революционная система двойного дожига. Инновационная система, позволяющая гарантировать как бóльшую чистоту отходящих газов, так и бóльшую полезную теплоотдачу топки. Первичное горение дает хорошие результаты благодаря революционной системе распределения воздуха, подаваемого для поддержания процесса горения, но дальнейшая оптимизация достигается за счет так называемого " двойного дожига" - при подаче воздуха в топочную камеру через систему S.C.P., расположенную на дефлекторе, позволяя вновь поступившему кислороду способствовать вторичному восгоранию и уничтожению продуктов горения (CO) и вместе с тем способствуя накоплению тепла.

Ищем лучшую цену в {region_field_10}

Мы стараемся, чтобы Вы остались довольны, именно поэтому представляем Вам возможность приобрести данный товар на более выгодных условиях. Для этого всего лишь нужно отправить запрос во все магазины города, а они в свою очередь предоставят Вам данные по ценам и акциям.

Заполните данные для запроса:
Товар: Каминная топка Edilkamin H2Oceano 15
Топливо Дрова
Форма стекла Прямое
Водяной контур Есть
Подъемная дверца Есть
Шибер Нет
Колосник Есть
Зольник Есть
Мощность (кВт) 14
КПД (%) 83
Диаметр (мм) 180
Высота (мм) 1350
Ширина (мм) 740
Глубина (мм) 620
Вес 240 кг
Бренд EdilKamin (Италия)
Рассказать друзьям!
Купить Каминная топка Edilkamin H2Oceano 15
Артикул товара: 3617
В наличии
438 150 руб. ×
Наши преимущества
  • Заказ
    Наш менеджер готов ответить на все ваши вопросы.
  • Доставка
    Мы доставим ваш заказ по городу, области или через транспортные компании по всей России.
  • Оплата
    Оплатите заказ банковской картой, наличными в нашем магазине или при доставке наличными.
  • Розничный магазин
    Будем рады видеть вас в нашем магазине по адресу {region_field_3}
{region_field_23}