0 0

Мы открыты
{region_schedule}

Звоните!
{region_phone}

Наш адрес
Смотреть

Бесплатная доставка
При покупке от 20 тысяч рублей

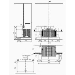
Каминная топка Hoxter Haka 63/51T Стальной теплообменник с вертикальным выходом

Теги: каминная топка

Каминная топка HOXTER HAKA 63/51 может быть с тепловоздушным режимом, с аккумулирующим режимом с массой возле топки, с аккумулирующим режимом с массой на каминной вставке. Эту топку можно использовать для создания теплоемких облицовок и для отопления дома с применением воздушной разводки по комнатам. Особая конструкция дымосборника позволяет больше снимать тепла с дымовых газов, о чем свидетельствует низкая температура продуктов сгорания 261 градусов при стандартной закладке дров 3,8 кг. Также для уменьшения теплового излучения через стекло можно опционально заказать двойное стекло. Стандартно дверь может открываться на петлях расположенных либо справа, либо слева.

Использование каминных вставок с водяным контуром дарит неповторимую атмосферу от наблюдения за огнем и одновременно самую эффективное преобразование тепла в воду. Они могут удовлетворить настолько высокие потребности в преобразование тепловои энергии в воду, что будет и целыи дом отоплен, и вода нагрета, и при этом помещение в котором находится не будет перегрето. Каминные вставки с водяным контуром в сочетании теплоаккумулирующеи емкостью (буфером) представляют собои эффективныи способ генерирования тепла.

Особенности и преимущества топок HOXTERПодовое горениеДрова сгорают в мелкую пыль, меньше отходов и больше тепла.Интервал профилактического обслуживания топки увеличивается.При наличии золы в топке время розжига сокращается.Всегда чистое стеклоВысокая температура способствует очищению топки от сажи,а потоки воздуха предотвращают её осаждение на стекло топки.Простота эксплуатацииЛегкое плавное открывание дверцыпростой розжиг и регулировка пламениАвтоматика управления горением ABRA-6Двойное остеклениеУменьшает передачу энергии через дверцу,повышает температуру внутри камеры сгорания.Повышает комфорт пребывания возле камина.Надежность и техническое совершенствоНадежность конструкцииДверной профиль особой формы из стали толщиной от 2,5 ммМинимальное тепловое расширениедолговечность и безопасность эксплуатацииГерметичность топочной дверцыОбеспечивается конструктивом профиля и пружинным механизмом, прижимающим дверцу с силой 250 Ньютонов (25 кг)Видеообзор: Преимущества топок HOXTERВидеообзор: Надежность топок HoxterВидеообзор: Hoxter - механизм дверцы с открыванием вверхВидеообзор: Простота в эксплуатации HoxterВидеообзор: Hoxter. Съемная ручка

Ищем лучшую цену в {region_field_10}

Мы стараемся, чтобы Вы остались довольны, именно поэтому представляем Вам возможность приобрести данный товар на более выгодных условиях. Для этого всего лишь нужно отправить запрос во все магазины города, а они в свою очередь предоставят Вам данные по ценам и акциям.

Заполните данные для запроса:
Товар: Каминная топка Hoxter Haka 63/51T Стальной теплообменник с вертикальным выходом
Топливо Дрова
Форма стекла Двухстороннее
Материал топки Сталь
Водяной контур Нет
Футеровка Шамот
Подъемная дверца Нет
Шибер Нет
Колосник Нет
Зольник Нет
Мощность (кВт) 8
КПД (%) 80
Диаметр (мм) 180
Высота (мм) 1471
Ширина (мм) 736
Глубина (мм) 566
Вес 245 кг
Бренд Hoxter (Чехия)
Рассказать друзьям!
Купить Каминная топка Hoxter Haka 63/51T Стальной теплообменник с вертикальным выходом
Артикул товара: 3943
В наличии
462 110 руб. ×
Наши преимущества
  • Заказ
    Наш менеджер готов ответить на все ваши вопросы.
  • Доставка
    Мы доставим ваш заказ по городу, области или через транспортные компании по всей России.
  • Оплата
    Оплатите заказ банковской картой, наличными в нашем магазине или при доставке наличными.
  • Розничный магазин
    Будем рады видеть вас в нашем магазине по адресу {region_field_3}
{region_field_23}